昨日も、今日も、明日も、Brompton。
Posted by 元銀座カプセル男 - 2014.12.15,Mon
これまた随分と前のお話。銀座カプセルからYS-11で建築ぽたぽた。
これも以前あげてたかなぁ?
今回のBGMは・・・
Such A Night / The Four Lovers
いまはなきYS-11(いいこ)にてぽたぽた。
あの男のアリマストンビル通過。まだ1階しか出来ていない頃だったのね。
上小沢邸到着。まだレストランになる前。イヒヒ
なるほどぉ。
しびれゔぁ!なんちゅ〜モダンな平屋!
上からも眺めちゃいます!
H鋼とコンクリートブロックのフェンスのデザインまで、しびれゔぁ!
一旦終了。
そして夜にまた来た。
いいわぁ。
や、やるね。
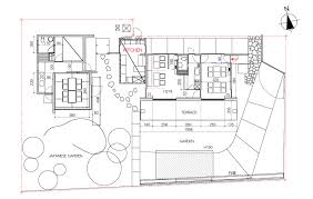
平面図。
現地までの地図。
現在は残念ながら焼肉レストランになってます。
この住宅を詳しく知りたい方は
広瀬鎌二/上小沢邸で検索!
これも以前あげてたかなぁ?
今回のBGMは・・・
Such A Night / The Four Lovers
いまはなきYS-11(いいこ)にてぽたぽた。
あの男のアリマストンビル通過。まだ1階しか出来ていない頃だったのね。
上小沢邸到着。まだレストランになる前。イヒヒ
なるほどぉ。
しびれゔぁ!なんちゅ〜モダンな平屋!
上からも眺めちゃいます!
H鋼とコンクリートブロックのフェンスのデザインまで、しびれゔぁ!
一旦終了。
そして夜にまた来た。
いいわぁ。
や、やるね。
平面図。
現地までの地図。
現在は残念ながら焼肉レストランになってます。
この住宅を詳しく知りたい方は
広瀬鎌二/上小沢邸で検索!
PR
カレンダー
カテゴリー
フリーエリア
最新記事
(06/28)
(06/27)
(06/26)
(03/27)
(02/08)
(02/07)
(02/06)
(02/05)
(02/04)
(02/03)
(02/02)
(02/01)
(11/20)
(11/19)
(11/18)
(11/17)
(11/16)
(11/15)
(11/14)
(11/13)
プロフィール
HN:
元銀座カプセル男
性別:
男性
職業:
店舗デザイナー・時々建築家
趣味:
折りたためるもの集め
最古記事
(02/16)
(05/15)
(06/18)
(06/19)
(06/19)
(06/20)
(06/21)
(07/04)
(07/05)
(07/10)
(08/28)
(08/28)
(08/28)
(08/28)
(08/28)
(08/29)
(08/29)
(08/29)
(09/04)
(02/09)
ブログ内検索
アーカイブ
Template by mavericyard*
Powered by "Samurai Factory"
Powered by "Samurai Factory"

